来源:佛教建筑精选 时间:2023-04-04

清代建筑是指清代时期的建筑。清代(公元1616-1911年)是中国最后一个封建王朝,这一时期的建筑大体因袭明代传统,但也有发展和创新,建筑物更崇尚工巧华丽。

在清代建筑群实例中,群体布置与装修设计水平已达成熟。
尤其是园林建筑,在结合地形或空间进行处理、变化造型等方面都有很高的水平。

这一时期,清代帝王兴建了大规模的皇家园林,这些园林建筑是清代建筑的精华,建筑技艺有所创新,中国的民居建筑丰富多彩,灵活多样的自由式建筑较多。
清代建筑的通则(又称通例),是确定建筑物各部分尺度、比例所遵循的共同法则。
这些法则规定了古建筑各部位之间的大的比例关系和尺度关系。
它是使各种不同形式的建筑持统一风格的很关键很重要的原则。
清式建筑的通则主要涉及以下各方面:面宽与进深,柱高与往径,面宽与柱高,收分与侧脚,上出与下出,步架与举架,台明高度,歇山收山,庑殿推山,建筑物各部构件的权衡比例关系。
1、面宽与进深
中国古建筑的平面以长方形为最普遍,一座长方形建筑,在平面上都有两种尺度,即它的宽与深。
其中长边为宽,短边为深。
如一栋三间北房,它的东西方向为宽,南北方向为深。
单体建筑又是由最基本的单元“间”组成的。
每四棵柱子围成一间,一间的宽为“面宽”,又称“面阔”,深为“进深”。
若干个单间面宽之和组成一栋建筑的总面宽,称为“通面宽”;若干个单间的进深则组成一座单体建筑的通进深
古建筑面宽(指明间面宽)的确定要考过虑到许多方面的因素,即要考虑实际需要(即所谓适用的原则),又要考虑实际可能(如木材长短、径寸等因素),并要受到封建等级制度的限制。
在古代,明间面宽的确定还要受到封建思想的束缚,在考虑面宽时,必须使用门口尺寸符合门尺上“官”“禄”“财”“义”等吉字的尺寸。
次间面宽酌减,一般为明间的8/10,或按实际需要确定。
2、柱高与柱径
古建筑柱子的高度与直径是有一定比例关系的,柱高与面宽也有一定比例。
小式建筑,如长檩或六檩小式,明间面宽与柱高的比例为10:8,即通常所谓面宽一丈,柱高八尺。柱高与柱径的比例为11:1。
如清工部《工程做法则例》规定:“凡檐柱以面阔十分之八定高,以十分之七(应为百分之七)定径寸。如面阔一丈一尺,得柱高八尺八寸,径七寸七分。”
五檩、四檩小式建筑,面阔与柱高之比为10:7。
根椐这些规定,就可以进行推算,已知面宽可以求出柱高,知柱高可以求出柱径。
相反,已知柱高、柱径也可以推算出面阔。
3、收分、侧脚
中国古建筑圆柱子上下两端直径是不相等的,除去瓜柱一类短柱外,任何柱子都不是上下等径的圆柱体,而是根部(柱脚、柱根)略粗,顶部(柱头)略细。
这种根部粗、顶部细的作法,称为“收溜”,又称“收分”。
要柱做出收分,既稳定又轻七,给人以舒适的感觉。
各式建筑收分的大小一般为柱高的1/100,如柱高3米,收分为3厘米,假定柱根为27厘米,那么,柱头收分后直径为24厘米。
大式建筑柱子的收分,《营造算例》规定为7/1000。

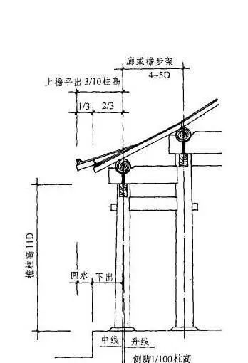
4、上出、下出(出水、回水)
中国古建筑出檐出檐深远,其出檐大小也有尺寸规定。
清式则例规定:小式房座,以檐檩中至飞檐椽外皮(如无飞檐至老檐椽头外皮)的水平距离为出檐尺寸,称为“上檐出”,简称“上出”,由于屋檐向下流水,故上檐出又形象地被称为“出水”。
无斗拱或小式建筑上檐出尺寸定为檐柱高的3/10,如檐柱高3米,则上檐出尺寸分为三等份,其中檐椽出头占2份,飞椽出头占一份。
中国古建筑都是建在台基之上的,台基露出地面部分称为台明,小式房座台明高为柱高的1/5或柱径的2倍。
台明由檐柱中向外延出的部分为台明出沿,对应屋顶的上出檐,又称为“下出”,下出尺寸,小式做法定为上出檐的4/5或檐柱径的2倍,大式做法的台明高台明上皮至挑尖梁下皮高的1/4。
大式台明出沿为上出檐的3/4。
古建筑的上出大于下出,二者之间有一段尺度差,这段差叫“回水”,回水的作用在于保证屋檐流下的水不会浇在台明上,从而起到保护柱根、墙身免受雨水侵蚀的作用。
5、步架、举架
步架:清式古建筑木构架中,相邻两檩中-中的水平距离称为步架。
步架依位置不同可分为廊步(或檐步)、金步、脊步等。如果是双脊檩卷棚建筑,最上面居中一步则称为“顶步”。
在同一幢建筑中,除廊步(或檐步)和顶步在尺度上有所变化外,其余各步架尺寸基本是相同的。

小式廊步架一般为4D-5D,金脊各步一般为4D,顶步架尺寸一般都小于金步架尺寸,以四檩卷棚为例,确定顶步架尺寸的方法一般是:将四架梁两端檩中尺寸均分五等份,顶步架占一份,檐步架各占二份,顶步架尺寸最小不应小于2D,最大不应大于3D,在这个范围内可以调整。

举架:所谓举架,指木构架相邻两檩中-中的垂直距离(举高)除以对应步架长度所得的系数,清代建筑常用举架有五举、六五举、七五举、九举等等。
表示举高与步架之比为0.5,0.65,0.75,0.9等等。
清式做法的檐步(或廊步),一般定为五举,称为“五举拿头”。
小式房屋或园林亭榭,檐步也有采用四五举或五五举的,要视具体情况灵活处理。
小式房脊步一般不超过八五举。大式建筑脊步一般不超过十举,古建筑屋面举架的变化决定着屋面曲线的优劣,所以在运用举架时应十分讲究,要注意屋面曲线的效果,使其自然和缓。
千百年来,古建筑匠师们在举架运用上已积累了一套成功经验,形成了较为固定的程式。
如小式五檩房,一般为檐步五举、脊步七举。七檩房,各步分别为五举、六五举、八五举等等。
大式建筑各步可依次为五举、六五举、七五举、九举等。
清代在园林建筑、藏传佛教建筑、民居建筑三方面有着巨大的成就。同时建筑艺术上更注意总体布局及艺术意境的发挥,尤其在建筑装饰艺术方面更具有划时代表现。
